4. Rolkasten ontwerp

Rolkast achtersijde, vanaf dak gezien.

Achter aanzicht

Hier zij de drie rolkasten vanuit het denkbeeldige schuine dak te zien. Het dak ter plaatsen loopt vanaf einde vloer tot aan draagbalk welke is getekend.

Rolkast zijaanzicht.

Zij aanzicht

De drie rolkasten rollen vanuit de kamer onder het schuine dak ter plaatsen. Het lichtblauw is zijkant rolkast. De wielen zijn in tekening weg gelaten.

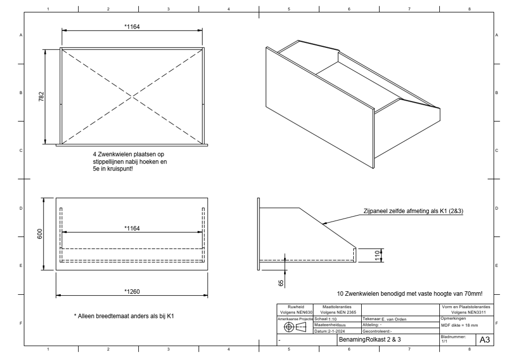
Bouwtekening

Dit is één van de drie bouwtekeningen welke als basis dienen om rol kasten te bouwen. De tekeningen worden door Fusion gegenereerd uit getekende 3D ontwerp en van maatvoering voorzien. Door deze dienstverlening, kunnen ontwerpen door opdrachtgever zelf of derde worden gebouwd.

Zoekt u maatwerkoplossingen voor kastruimte met specifieke, ongebruikelijke afmetingen?
Wij staan klaar, om u te helpen en uw wensen werkelijkheid te maken!