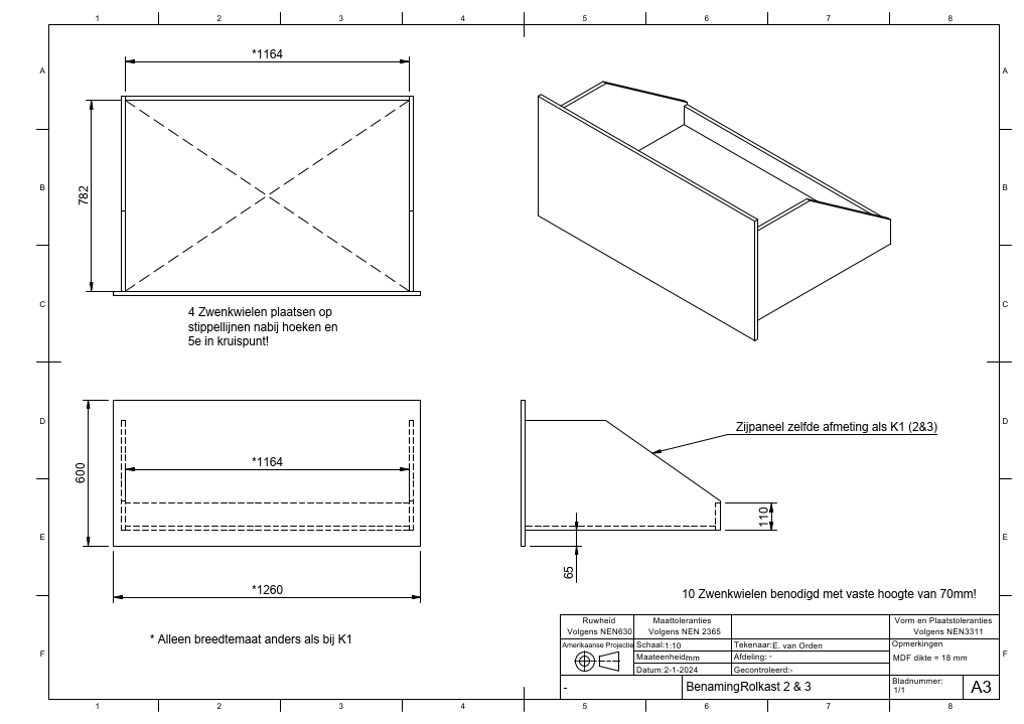
Technissche tekening voorbeeld.
3. CAD-Engineering
Fusion biedt uitgebreide mogelijkheden om technische tekeningen te maken die voldoen aan geldende normen. Hier zijn de belangrijkste functies en processen:

1. ISO-standaarden: Fusion  ondersteunt internationale standaarden zoals ISO, waardoor wij technische tekeningen kunnen maken die wereldwijd worden erkend.

2. Sjablonen en formaten: We kunnen kiezen uit verschillende sjablonen en papierformaten, zoals A4 en A3, om de tekening aan te passen aan specifieke eisen.

3. Aanzichten en projecties: Het programma biedt opties voor meerdere aanzichten, zoals bovenaanzicht, zijaanzicht en isometrisch aanzicht. We kunnen ook doorsneden en detailaanzichten maken om complexe onderdelen duidelijk te presenteren.

4. Dimensionering: Fusion heeft tools om nauwkeurige dimensies toe te voegen, zoals lineaire, hoek-, radius- en diametermetingen. Dit is essentieel voor het specificeren van technische details.

5. Annotaties en symbolen: We kunnen annotaties, centerlijnen, tolerantie-symbolen en andere technische markeringen toevoegen om de tekening volledig te maken.

6. Titelblok en metadata: Het programma stelt ons in staat om titelblokken aan te passen met projectinformatie, zoals naam, datum en revisienummer.

7. Exporteren: We kunnen de technische tekening exporteren in verschillende formaten, zoals PDF, zodat deze gemakkelijk gedeeld en afgedrukt kan worden.

Fusion maakt het proces intuïtief en efficiënt, terwijl het voldoet aan professionele normen.

Alle geëxporteerde technische tekeningen kunnen dienen als basis voor verdere verwerking en productie van het ontwerp.